Rapport compartimentering
Een rapport compartimentering maken
Module Compartimentering
Om het rapport compartimentering te kunnen maken heeft u toegang nodig tot de module Compartimentering. Indien u deze wil activeren op uw projecten laat het ons dan weten via Support. Dit rapport is beschikbaar onder Site, Gebouw en verdieping.
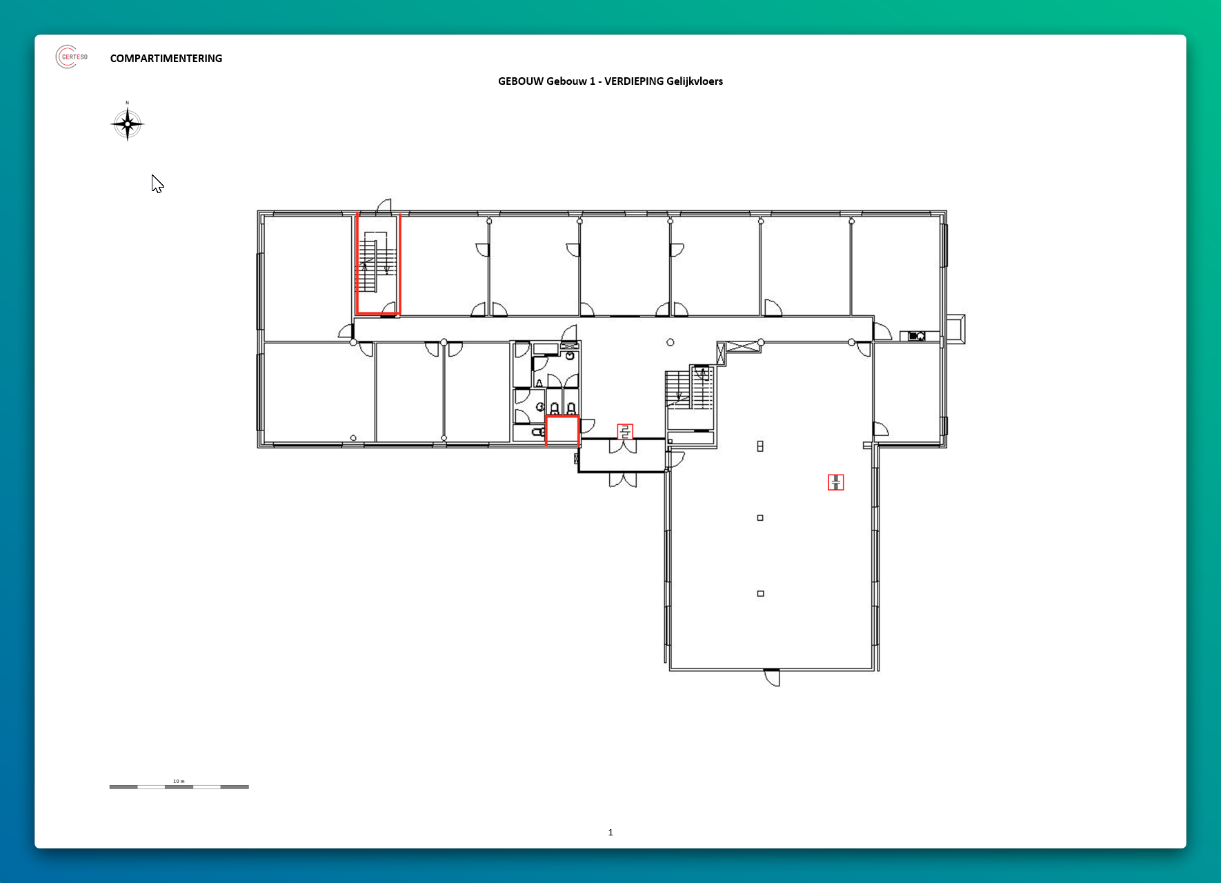
Als voorbeeld plaatsen we eerst twee brandcompartimenten, een branddeur en een doorvoering op het verdiepingsplan.
We openen de eigenschappen van de branddeur door erop te dubbel-klikken. We vullen enkele eigenschappen inzake vaststellingen en afmetingen in.
Ook klikken we op de Media tab onderaan en voegen foto's toe door te klikken op de knop Afbeelding toevoegen ....
Hetzelfde doen we voor de doorvoering.
Rapport maken
- Open de Site, Gebouw of Verdieping.
- Klik onderaan het scherm op Rapporten
- Kies bovenaan uit de lijst Rapport compartimentering
Als je gekozen hebt voor een Site of Gebouw krijg je een nieuw dialoogvenster te zien waarin je de locaties kunt selecteren die je wilt opnemen in het rapport. Druk na de selectie op Volgende.
Als je gekozen hebt voor een rapport te maken van een enkele verdieping (zoals in dit voorbeeld) vraagt de rapport wizard je enkel nog om een naam voor het rapport op te geven en te beslissen of het moet worden opgeslagen. Klik op Voltooien en kies de gewenste opslaglocatie.
Het resultaat
Dit genereert een Docx-bestand met alle geselecteerde locaties en alle compartimenteringen.









